Mieszkanie Łęczna Bobrowniki, Wierzbowa
Łęczna Pokaż na mapie ›
Odświeżone: Środa, 29 Październik, 2025 14:16
423 835 zł
7997 zł/m2
Szczegóły ogłoszenia
- Kategoria: Mieszkania / Sprzedaż
- Powierzchnia:53 m2
- Liczba pokoi:3 pokoje
- Zabudowa:Blok
- Piętro :7 piętro
- Liczba pięter:Wieżowiec
- Rynek:Wtórny
- Rok budowy:2026
- Sprzedaż:Pośrednik
- Cena: 423 835 zł / 7997 zł/m2
Opis oferty
Nowe mieszkanie - 3 pokoje + aneks kuchenny, balkon + taras, Łęczna, Bobrowniki.WGN CENTRUM SPRZEDAŻY !
BEZ PROWIZJI ORAZ BEZ PODATKU PCC
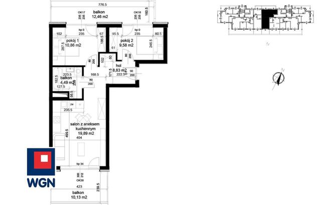
Salon z aneksem kuchennym + 2 sypialnie, usytuowane na 7 piętrze.
Atrakcyjny rozkład pomieszczeń!
OFERTA BEZ PROWIZJI - kupując tą nieruchomość z naszym Biurem Sprzedaży nie zapłacisz prowizji i nie podpisujesz żadnych umów.
Wspomożemy Cię profesjonalną opieką, począwszy od weryfikacji nieruchomości, aż po uzyskanie kredytu i pełną obsługę notarialną.
Układ mieszkania:
Powierzchnia mieszkania:
Położenie; 7 piętro
Liczba pokoi: 3
Liczba łazienek:1
Oddzielne wc: nie
Kuchnia:1
Piwnica: do wyboru
Informacje ogólne:
- mieszkanie bardzo pięknie położone, słoneczne, widne.
- salon z aneksem kuchennym - 19,89m2;
- sypialnia - 10,86m2;
- sypialnia - 9,58m2;
- łazienka - 4,49;
- taras - 12,46 m2;
- balkon - 10,13 m2;
Osiedle znajduje się u zbiegu ulic Jaśminowej i Wierzbowej , w dzielnicy Bobrowniki.
Atutem tej lokalizacji jest bliskość zielonych terenów chronionych Nadwieprzańskiego Parku Krajobrazowego, zaledwie 30 minut od Poleskiego Parku Narodowego.
Nasza inwestycja to prestiżowe, nowoczesne apartamenty, które spełnią oczekiwania nawet najbardziej wymagających klientów.
Teren osiedla będzie w pełni zagospodarowany, z dużą ilością zieleni i pięknymi widokami z okien apartamentów. Wszystkie klatki schodowe wyposażono w nowoczesne, cichobieżne windy, które zapewniają dostęp do wszystkich pięter oraz zjazd do podziemnego parkingu, gdzie znajdują się także komórki lokatorskie.
Mieszkania będą oddane w tzw. standardzie deweloperskim, przygotowane do końcowego wykończenia przez nabywców. Istnieje możliwość wprowadzenia indywidualnych zmian w układzie ścianek działowych, rozmieszczeniu kontaktów.
W pierwszym etapie inwestycji mamy do zaoferowania metraże od 29 m2 do 63 m2, każde ma dostęp do obszernego balkonu.
Znajdować się one będą w pięciu siedmiopiętrowych budynkach.
Inwestycja obecnie jest w trakcie budowy z planowanym zakończeniem na III kw. 2026 roku.
Dostępne są mieszkania 1, 2, 3 pokojowe w przedziale metrażowym już od 36m2.
Dla przyszłych mieszkańców przewidziane zostały :
- komórki lokatorskie
- miejsca parkingowe zewnętrzne
- miejsca parkingowe podziemne
które są dodatkowo płatne.
Wszelkie informacje dotyczące oferty mieszkań przesyłamy Państwu na wskazany adres e-mail po zgłoszeniu telefonicznym lub e-mailowym. Otrzymacie Państwo:
prospekt informacyjny z harmonogramem płatności
wzór umowy deweloperskiej
plan zagospodarowania terenu
rzuty kondygnacji i wizualizacje.
Istnieje możliwość rezerwacji na 7 dni bezpłatnie w celu zapoznania się ze szczegółami inwestycji.
Naszym klientom zapewniamy doradztwo kredytowe oraz zespół doświadczonych projektantów wnętrz.
Informacje o nieruchomości zostały sporządzone na podstawie oświadczeń i nie są ofertą w rozumieniu przepisów prawa. Mają wyłącznie charakter informacyjny i mogą podlegać aktualizacji. Zalecamy ich osobistą weryfikację.
Wszelkie prawa zastrzeżone. Teksty, rysunki, zdjęcia oraz inne informacje opublikowane na niniejszych stronach podlegają prawom autorskim WGN Nieruchomości w Lublinie. Wszelkie kopiowanie, dystrybucja, elektroniczne przetwarzanie oraz przesyłanie zawartości bez zezwolenia są zabronione.
WGN zapewnia rynkowe ceny, bezpieczeństwo korzystnej transakcji, doradztwo kredytowe oraz pomoc notariusza. Wyróżniamy się pełnym zaangażowaniem, ekspercką wiedzą i najwyższym poziomem usług opartych na ponad 30-letnim doświadczeniu na rynku nieruchomości w Polsce. Stosujemy System Jakości ZJ WGN oraz Kodeks Etyki Zawodowej Polskiej Federacji Rynku Nieruchomości.
Wymagana ustawą strona dewelopera: https://tbv.pl/nowa-inwestycja-w-lecznej-polesie-park/ (tbv*pl/nowa-inwestycja-w-lecznej-polesie-park/)
Oferta specjalna biura WGN
Dzwoniąc pytaj o numer oferty 81 biura 88 z systemu inetonline.pl
Numer oferty: 81-88
Sprawdź zainteresowanie tym ogłoszeniem
Wyświetlenia
Data dodania
Ostatnio widziany
Obserwujących
Wysłane zapytania
Odsłony telefonu
Powiadom o podobnych ogłoszeniach
Lokalizacja: Łęczna
Kategoria: Nieruchomości » Mieszkania » Sprzedaż
Cena: od 360500 zł do 487500 zł Powierzchnia : od 45 m2 do 61 m2
Chcę otrzymywać powiadomienia o nowych ofertach

Konto firmowe
Na Lento.pl od 05 mar 2024
Odpowiada szybko
Strona użytkownika
- Wypromuj ogłoszenie
- Zgłoś naruszenie
- Drukuj ulotkę
- Edytuj/usuń ogłoszenie
- Udostępnij ogłoszenie
- Dodaj na Facebook



















