Mieszkanie Łęczna Bobrowniki, Wierzbowa
Łęczna Pokaż na mapie ›
Odświeżone: Środa, 29 Październik, 2025 14:16
468 707 zł
7944 zł/m2
Szczegóły ogłoszenia
- Kategoria: Mieszkania / Sprzedaż
- Powierzchnia:59 m2
- Liczba pokoi:3 pokoje
- Zabudowa:Blok
- Tech. budowy:Pustak
- Piętro :1 piętro
- Liczba pięter:Wieżowiec
- Rynek:Wtórny
- Rok budowy:2026
- Sprzedaż:Pośrednik
- Cena: 468 707 zł / 7944 zł/m2
Opis oferty
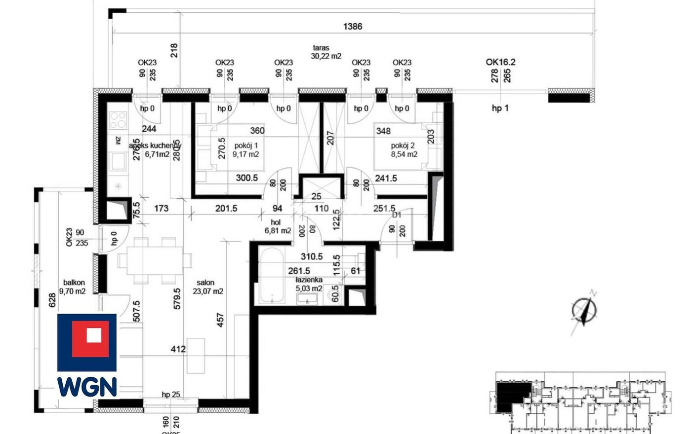
Nowe 3-pokojowe mieszkanie 59,33 m2 na nowoczesnym osiedlu w doskonałej lokalizacji idealne dla rodziny.Oferuję nowe mieszkanie M3 o powierzchni 59,33 m2. Mieszkanie na nowoczesnym osiedlu zlokalizowane na pierwszym piętrze budynku z ogromnym tarasem oraz balkonem. Idealne rozwiązanie dla rodziny lub pod wynajem.
Mieszkanie będzie oddane w tzw. standardzie deweloperskim, przygotowane do końcowego wykończenia przez nabywców. Istnieje możliwość wprowadzenia indywidualnych zmian w układzie ścianek działowych, rozmieszczeniu kontaktów.
Inwestycja obecnie jest w trakcie budowy z planowanym zakończeniem na III kw. 2026 roku.
WGN CENTRUM SPRZEDAŻY !
BEZ PROWIZJI ORAZ BEZ PODATKU PCC dla kupującego
Układ mieszkania:
Przestronny jasny salon 23,07 m2 z wyjściem na duży balkon 9,70 m2 w ekspozycji zachód/południe połączony z aneksem kuchennym 6,71 m2 zapewni doskonałą przestrzeń na relaks i wspólne posiłki.
Dwie komfortowe sypialnie 9,17 i 8,54 m2 będą świetnym miejscem wypoczynku lub dodatkową przestrzenią na gabinet.
Łazienka z WC 5,03 m2 usytuowana tak by zapewnić komfort w codziennym użytkowaniu.
Duży taras 30,22 m2 z dostępem z kuchni oraz obydwu sypialni oferuje wyjątkowo dużą przestrzeń i możliwości wykorzystania.
Najważniejsze atuty:
Położenie na pierwszym piętrze w kierunkach północ-zachód-południe zapewnia dobre doświetlenie części dziennej i jednocześnie brak nadmiernego nagrzewania części sypialnej.
Nowoczesne osiedle z terenami zielonymi i placem zabaw.
Bliskość szkoły, przedszkola, szpitala, przychodni, sklepów, lokali usługowych i stacji benzynowej - wszystko co najważniejsze jest na wyciągnięcie ręki.
Możliwość zakupu miejsca postojowego lub w garażu podziemnym zapewnia komfort i bezpieczeństwo przy codziennym parkowaniu pojazdu.
Możliwość zakupu komórki lokatorskiej.
Komunikacja:
Dogodne połączenie drogowe z centrum jak i z wyjazdem z miasta.
Bezpośredni dostęp do sieci ścieżek rowerowych.
Bliskość terenów spacerowych tj. dolina rzeki Wieprz, Nadwieprzański Park Krajobrazowy.
Podsumowanie:
- 3 pokoje
- 59,33 m2
- I piętro
- doskonała lokalizacja
- dobre skomunikowanie z miastem
- nowoczesne osiedle
W ofercie dostępne również inne mieszkania od 36 do 62 m2 na piętrach od 1 do 7.
Wszelkie informacje dotyczące oferty mieszkań przesyłamy Państwu na wskazany adres e-mail po zgłoszeniu telefonicznym lub e-mailowym. Otrzymacie Państwo:
prospekt informacyjny z harmonogramem płatności
wzór umowy deweloperskiej
plan zagospodarowania terenu
rzuty kondygnacji i wizualizacje.
Istnieje możliwość rezerwacji na 7 dni bezpłatnie w celu zapoznania się ze szczegółami inwestycji.
Naszym klientom zapewniamy doradztwo kredytowe oraz zespół doświadczonych projektantów wnętrz.
Informacje o nieruchomości zostały sporządzone na podstawie oświadczeń i nie są ofertą w rozumieniu przepisów prawa. Mają wyłącznie charakter informacyjny i mogą podlegać aktualizacji. Zalecamy ich osobistą weryfikację - www.tbv.pl/polesie-park-nowe-mieszkania-leczna-2.
Wszelkie prawa zastrzeżone. Teksty, rysunki, zdjęcia oraz inne informacje opublikowane na niniejszych stronach podlegają prawom autorskim WGN Nieruchomości w Lublinie. Wszelkie kopiowanie, dystrybucja, elektroniczne przetwarzanie oraz przesyłanie zawartości bez zezwolenia są zabronione.
WGN zapewnia rynkowe ceny, bezpieczeństwo korzystnej transakcji, doradztwo kredytowe oraz pomoc notariusza. Wyróżniamy się pełnym zaangażowaniem, ekspercką wiedzą i najwyższym poziomem usług opartych na ponad 30-letnim doświadczeniu na rynku nieruchomości w Polsce. Stosujemy System Jakości ZJ WGN oraz Kodeks Etyki Zawodowej Polskiej Federacji Rynku Nieruchomości.
Wymagana ustawą strona dewelopera: https://tbv.pl/nowa-inwestycja-w-lecznej-polesie-park/ (tbv*pl/nowa-inwestycja-w-lecznej-polesie-park/)
Oferta specjalna biura WGN
Dzwoniąc pytaj o numer oferty 278 biura 88 z systemu inetonline.pl
Numer oferty: 278-88
Sprawdź zainteresowanie tym ogłoszeniem
Wyświetlenia
Data dodania
Ostatnio widziany
Obserwujących
Wysłane zapytania
Odsłony telefonu
Powiadom o podobnych ogłoszeniach
Lokalizacja: Łęczna
Kategoria: Nieruchomości » Mieszkania » Sprzedaż
Cena: od 398500 zł do 539000 zł Powierzchnia : od 50 m2 do 68 m2
Chcę otrzymywać powiadomienia o nowych ofertach

Konto firmowe
Na Lento.pl od 05 mar 2024
Odpowiada szybko
Strona użytkownika
- Wypromuj ogłoszenie
- Zgłoś naruszenie
- Drukuj ulotkę
- Edytuj/usuń ogłoszenie
- Udostępnij ogłoszenie
- Dodaj na Facebook





























